লুগাও দ্বারা উত্পাদিত GW13 ডিসকানেক্টর সুইচ নিউট্রাল পয়েন্ট গ্রাউন্ডিং প্রোটেকশন ডিভাইসটি ট্রান্সফরমার নিউট্রাল পয়েন্টের অন্তরণকে বজ্রপাতের ওভারভোল্টেজ, সুইচিং ওভারভোল্টেজ এবং পাওয়ার ফ্রিকোয়েন্সি (ক্ষণস্থায়ী) ওভারভোল্টেজ থেকে রক্ষা করার জন্য ডিজাইন করা হয়েছে। লুগাওর পেশাদার উত্পাদন সরঞ্জাম এবং সমৃদ্ধ রপ্তানি অভিজ্ঞতা রয়েছে এবং অনুষ্ঠিত জায়টি দ্রুত সরবরাহ করা যেতে পারে।
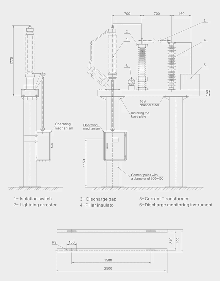
Lugao-এর GW13 সংযোগ বিচ্ছিন্ন সুইচ নিরপেক্ষ পয়েন্ট গ্রাউন্ডিং সুরক্ষা ডিভাইসগুলি প্রাথমিকভাবে 110kV এবং 220kV পাওয়ার ট্রান্সফরমারগুলির নিরপেক্ষ পয়েন্ট সার্কিটে ব্যবহৃত হয়। তারা ট্রান্সফরমারের নিরপেক্ষ বিন্দু নিরোধককে ওভারভোল্টেজ ক্ষতি থেকে রক্ষা করে এবং ট্রান্সফরমারকে গ্রাউন্ডেড এবং আনগ্রাউন্ডেড নিউট্রাল পয়েন্ট অপারেশন মোডের মধ্যে স্যুইচ করতে সক্ষম করে। যখন বজ্রপাত, পাওয়ার ফ্রিকোয়েন্সি এবং সুইচিং ওভারভোল্টেজগুলির বিরুদ্ধে একযোগে সুরক্ষা প্রয়োজন, তখন সুরক্ষার জন্য একটি ফাঁক এবং অ্যারেস্টার সমান্তরালভাবে সংযুক্ত করা যেতে পারে। GW13 সিরিজের নিউট্রাল পয়েন্ট ওভারভোল্টেজ প্রোটেক্টর হল একটি সম্পূর্ণ সেট যা একটি সংযোগ বিচ্ছিন্নকারী, জিঙ্ক অক্সাইড অ্যারেস্টার, ডিসচার্জ গ্যাপ এবং বর্তমান ট্রান্সফরমারকে একীভূত করে। এটি উচ্চ তাপ ক্ষমতা এবং চমৎকার সুরক্ষা, নমনীয় কনফিগারেশন এবং ব্যবহারের সহজতা বৈশিষ্ট্যযুক্ত। একটি বিশুদ্ধ ফাঁক ডিজাইন বা সংযোগ বিচ্ছিন্নকারী এবং স্রাব ফাঁকের সমন্বয় ব্যবহারকারীর চাহিদা মেটাতে নির্বাচন করা যেতে পারে।
GW13 সুরক্ষা ডিভাইস প্রযুক্তিগত বিশেষ উল্লেখ
| ltem |
ইউনিট |
যুক্তি |
||
| পণ্য মডেল |
|
লুগাও-GW13-110 |
লুগাও-GW13-220 |
|
| রেটেড ভোল্টেজ |
কেভি |
110 | 220 | |
| ট্রান্সফরমার নিরপেক্ষ ভোল্টেজ সহ্য করে |
বাজ পূর্ণ এবং কাটা ভোল্টেজ সহ্য করা (শিখর) |
কেভি |
250 | 400 |
| 1মিনিট পাওয়ার ফ্রিকোয়েন্সি (কার্যকর মান) |
কেভি |
95 | 200 | |
| নিরপেক্ষ বিচ্ছিন্ন সুইচ |
রেট করা বর্তমান |
A | 630 | 630 |
| অপারেটিং মেকানিজম |
|
CS14G (ম্যানুয়াল) বা CJ2 (বৈদ্যুতিক) |
||
| জিঙ্ক অক্সাইড গ্রেফতারকারী |
রেটেড ভোল্টেজ (RMS) |
কেভি |
72 | 144 |
| ক্রমাগত অপারেটিং ভোল্টেজ |
কেভি |
58 | 116 | |
| Dc 1mA রেফারেন্স ভোল্টেজ |
কেভি |
103 | 205 | |
| বজ্রপাত প্রবাহের অবশিষ্ট ভোল্টেজ |
কেভি |
186 | 320 | |
| স্রাব ফাঁক |
গ্যাপ ইলেক্ট্রোড দূরত্ব পরিসীমা |
মিমি | 90-150 | 220-320 |
| পাওয়ার ফ্রিকোয়েন্সি স্রাব ভোল্টেজ পরিসীমা |
কেভি |
50-83 | 100-166 | |
| 1.2/50us ইমপালস ডিসচার্জ ভোল্টেজ |
কেভি |
120-190 | 250-320 | |
| বর্তমান ট্রান্সফরমার |
টাইপ |
|
Epoxy রজন সম্পূর্ণরূপে আবদ্ধ স্তম্ভ টাইপ 10kv ঢেলে |
|
| রূপান্তর অনুপাত |
|
100/5,200/5,300/5.40015.50015.600/5 |
||
